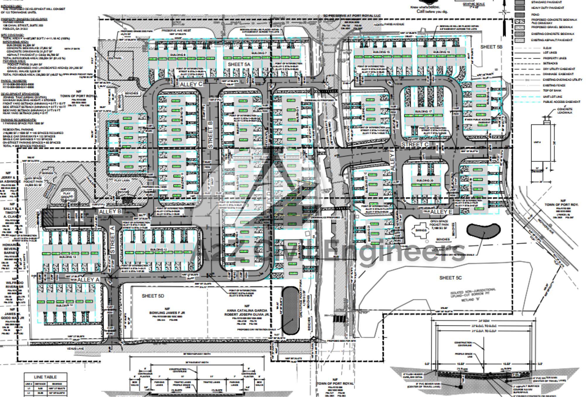
Project information:
Parcel Area: 11.18 AC ~ 4.52 HA.
Proposed Lots: 122 Lots, Design: Site Construction Plan.
Roadways width 24’-36′ ~ 7.3m – 11m
Design utility system: 8” Dip water main, 8”PVC sanitary sewer main, gas, electric, etc.




Ngày cập nhật: 02/02/2026
Author: A2Z Civil Engineers
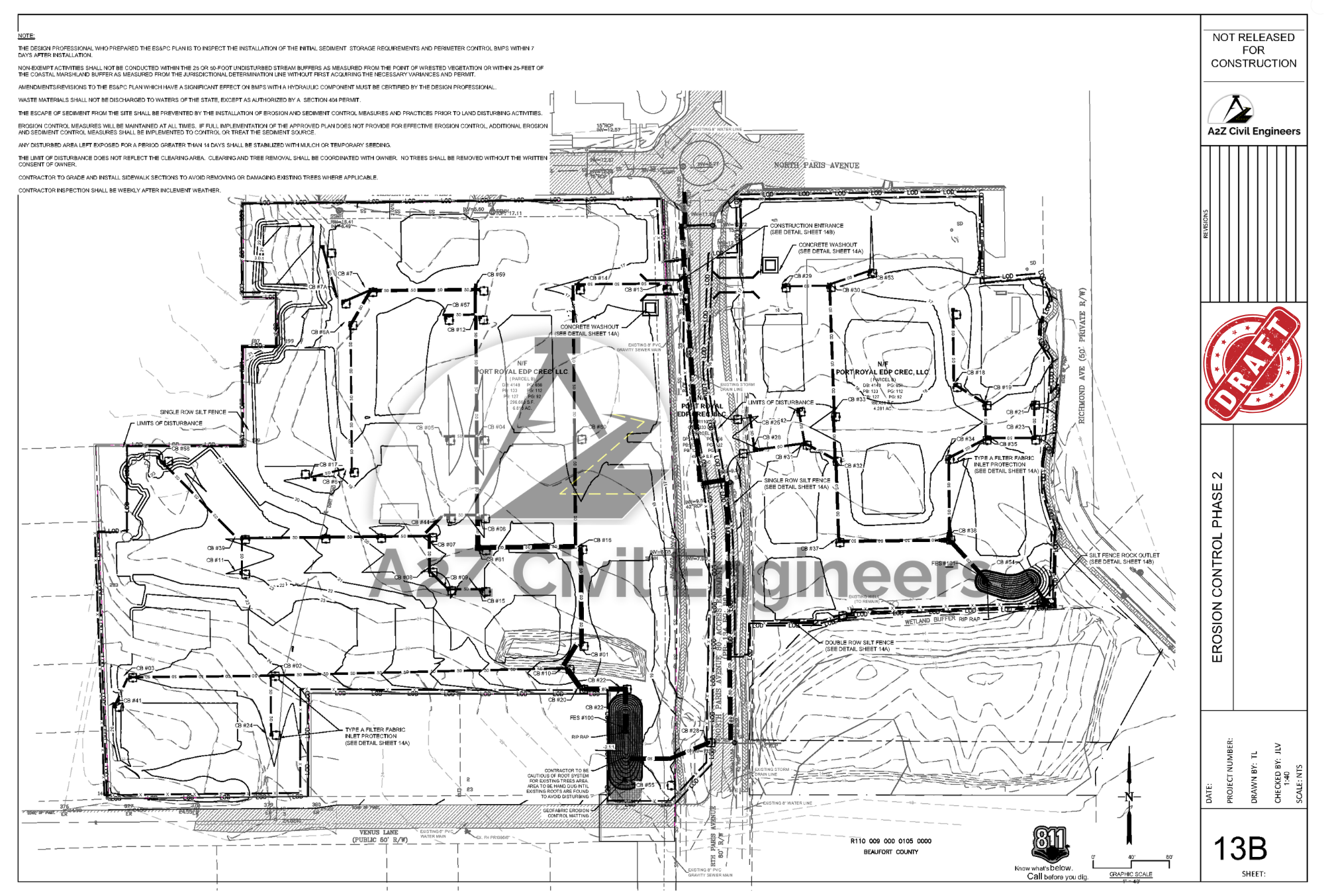
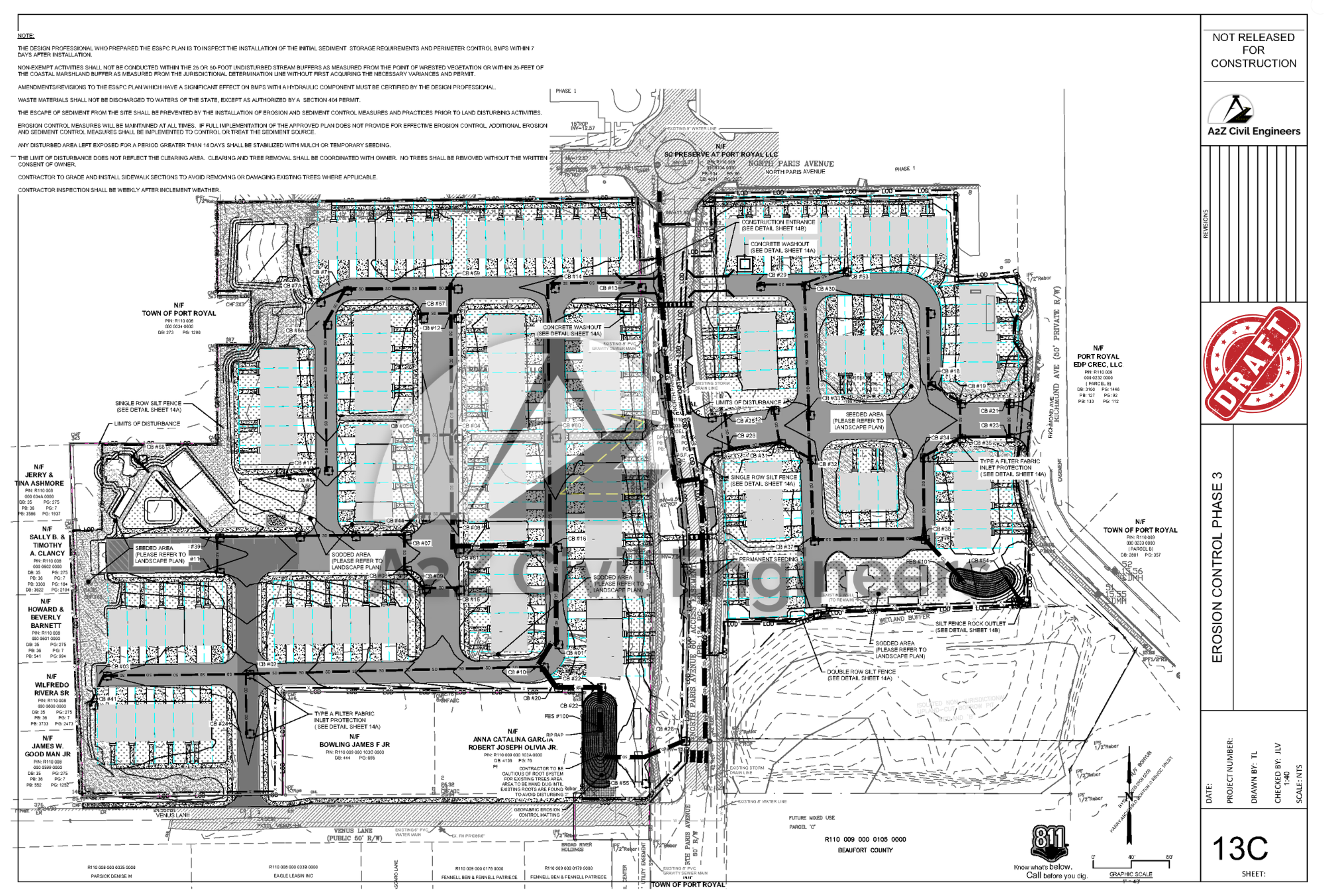
Project information:
Parcel Area: 11.18 AC ~ 4.52 HA.
Proposed Lots: 122 Lots, Design: Site Construction Plan.
Roadways width 24’-36′ ~ 7.3m – 11m
Design utility system: 8” Dip water main, 8”PVC sanitary sewer main, gas, electric, etc.



