Outsourcing for Land and Site Development Projects

Why Outsource Land Development Projects?

Outsourcing land and site development to A2Z Civil Engineers gives developers, architects, and engineering firms the flexibility to expand capacity without compromising quality.
We act as your extended design team – offering precise drafting, detailed grading, and fully engineered layouts that align with international standards.

What We Deliver

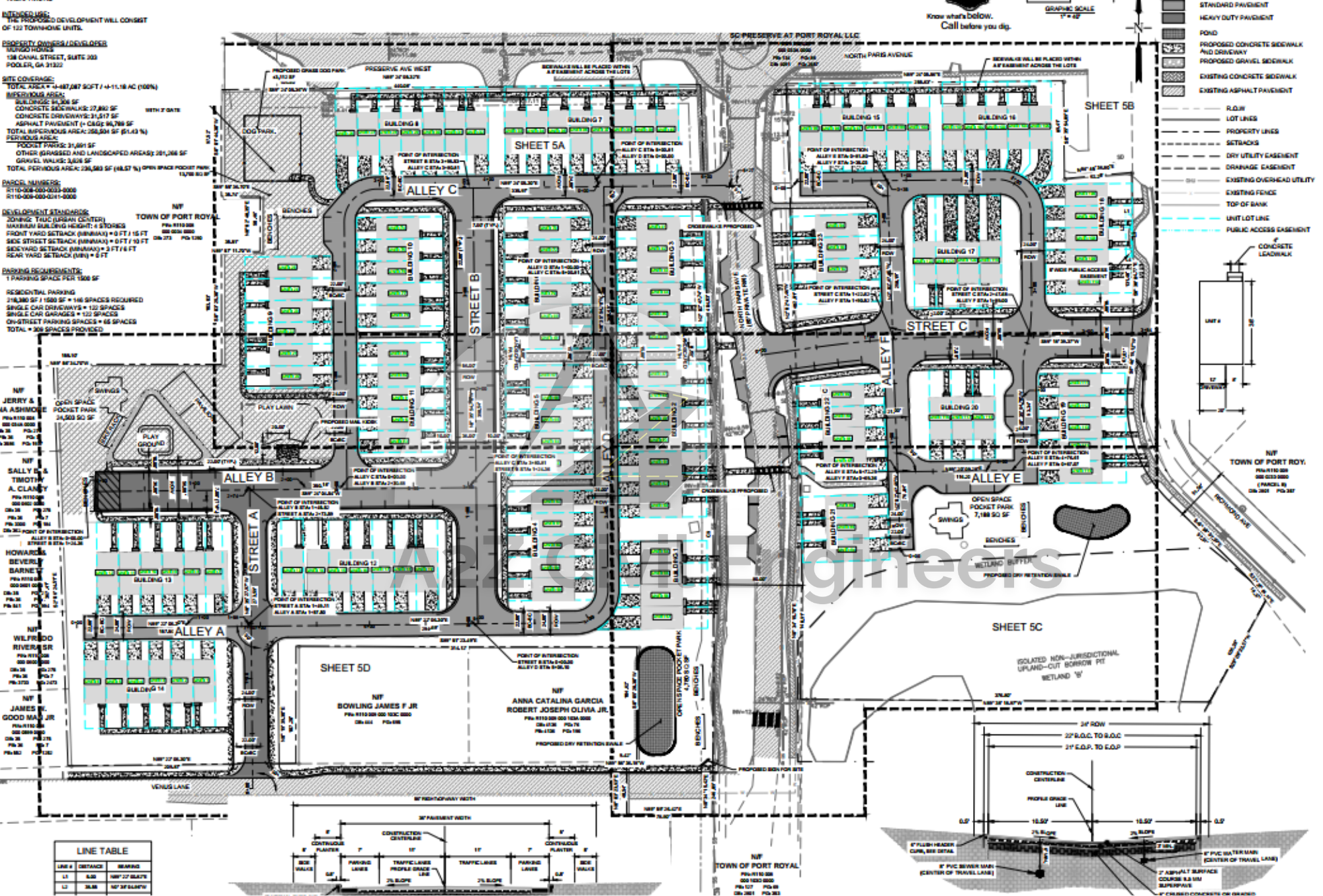
Our expertise covers the full scope of land and site development, including:

  • Site Grading Plans – Optimized for drainage, constructability, and balance of earthwork
  • Roadway Design & Lot Layouts – Compliant with local standards and subdivision codes
  • Stormwater Management Systems – Designed using HydroCAD, SSA, and HEC-RAS
  • Utility Plan & Profiles (Water, Sewer, Drainage) – Fully coordinated and clash-free
  • Erosion & Sediment Control Plans (ESC)
  • Detailed Quantity Takeoffs and Cost Estimation

Each deliverable undergoes internal QA/QC checks before client submission to ensure accuracy and readiness for construction or permitting.

Our Workflow

We maintain a clear and collaborative process for every project:

  1. Client Briefing & File Review – Understanding scope, standards, and references
  2. Initial QA Review – Identifying missing or inconsistent data
  3. Design & Drafting Execution – Performed by experienced civil engineers
  4. Internal QA/QC Review – Independent verification before delivery
  5. Client Review & Revisions – Fast turnaround for feedback
  6. Final Submission & Archiving – Project securely stored for future reference

Software & Standards

Our engineers use both local and international standards, ensuring every project is ready for submission in markets like the U.S., Australia, and the U.K.

Software Expertise Includes:
AutoCAD, Civil 3D, 12D, Revit, Recap, HydroCAD, SSA, Hydroflow, EPAnet, HEC-RAS…

Why Choose A2Z Civil Engineers

  • Cost-Effective Excellence – High quality at optimized cost
  • Skilled & Reliable Team – Background in civil and infrastructure engineering
  • Global-Standard Expertise – Familiar with AASHTO, ASTM, local standards and Austroads standards
  • Quick Turnaround – Fast, reliable delivery to keep your projects moving
  • Proven Track Record – U.S., Australia, and U.K. based clients

Ready to Start Your Next Project?

Partner with A2Z Civil Engineers for reliable, high-quality engineering and drafting support – delivered accurately, efficiently, and cost-effectively. Contact us at contact@a2zce.com or call +84-93-857-2324 for a free consultation and quote tailored to your project.