Sample Projects

PUBLIC IMPROVEMENTS

STREET IMPROVEMENTS, CALIFORNIA Project information: Location: California, USA Design Stage: Construction Documents Improvement Length: ~ 8,000 LF Right-of-Way Width: ~ 80 FT Roadway Width: 64’ (~19.5 m) Pavement Section: Asphalt concrete pavement...

See more

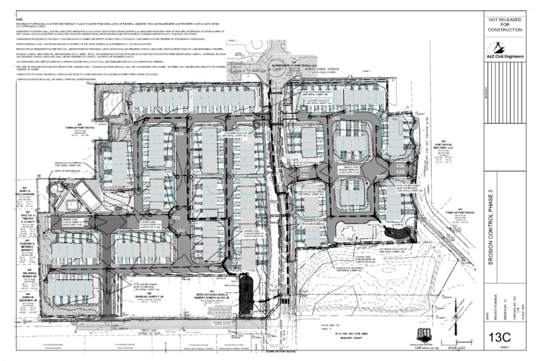
122 RESIDENTIAL TOWNHOME LOTS, SOUTH CAROLINA

Project information: Parcel Area: 11.18 AC ~ 4.52 HA. Proposed Lots: 122 Lots, Design: Site Construction Plan. Roadways width 24’-36′ ~ 7.3m – 11m Design utility system: 8” Dip water main, 8”PVC...

See more

OUTBACK STEAKHOUSE, SOUTH CAROLINA

Project information: Parcel Area: 1.74 AC ~ 0.4 HA. Proposed Building: 4,752 SF ~ 441.5m2 Design Stage: Construction Documents. Roadways width 24’ ~ 7m Design utility system: 8” Dip water main, 6”...

See more

RESIDENTIAL GRADING PLAN, CALIFORNIA

Project information: Parcel Area: 5 AC ~ 2.2 HA. Proposed Building: 8,389 SF ~ 779m2 Design Stage: Construction Documents. Roadways width 20’ ~ 6m

See more

SUBDIVISION PLAN

Project information: Parcel Area: 20.74 AC ~ 8.39 HA. Total number proposed lots: 159 Lots Semi-Detached Building: 49 Lots Detached Building: 108 Lots Minimum proposed lot size: 2,000 SF Maximum proposed lot...

See more

EARTHWORK CALCULATION

Project information: Parcel Area: 24.71 AC ~ 10HA. Proposed Lots: 10 Lots. Roadways width 22’ ~ 6.7m

See more

Tools & Software We Can Utilize

  • Tool logo
  • Tool logo
  • Tool logo
  • Tool logo
  • Tool logo
  • Tool logo
  • Tool logo
  • Tool logo
  • Tool logo
  • Tool logo
  • Tool logo
  • Tool logo
  • Tool logo
  • Tool logo
  • Tool logo
  • Tool logo
  • Tool logo
  • Tool logo
  • Tool logo
  • Tool logo
  • Tool logo
  • Tool logo
  • Tool logo
  • Tool logo